Interaktive Karte

J13 MiSCHA All-In Büros TOP 215, 51,92m²

Fertiggestellt

Rendering Gebäude MIscha
© @Projektwebiste mischa.wien
Lageplan All in Büros, Top 15, 52m²
© @Projektwebsite mischa.wien
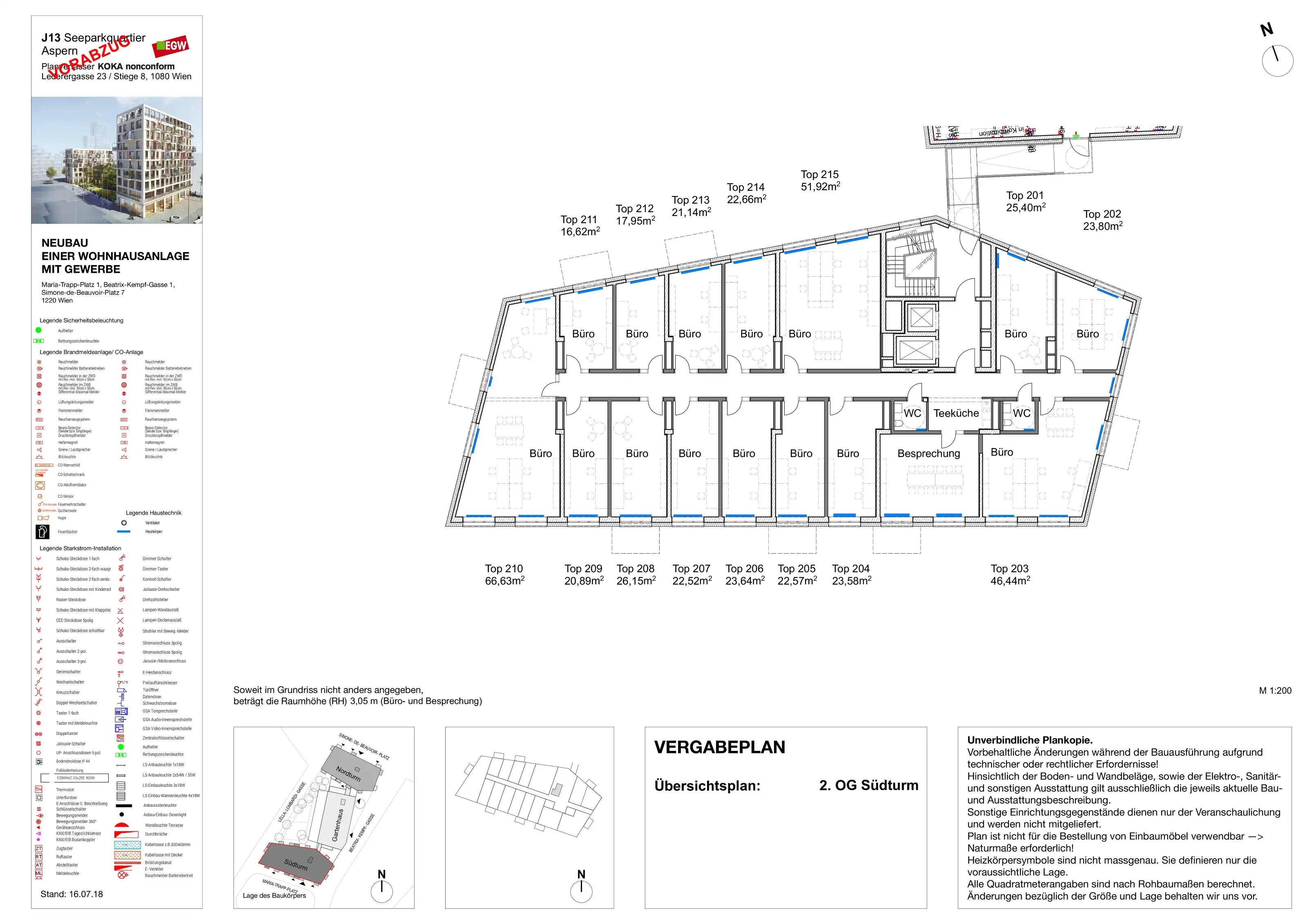
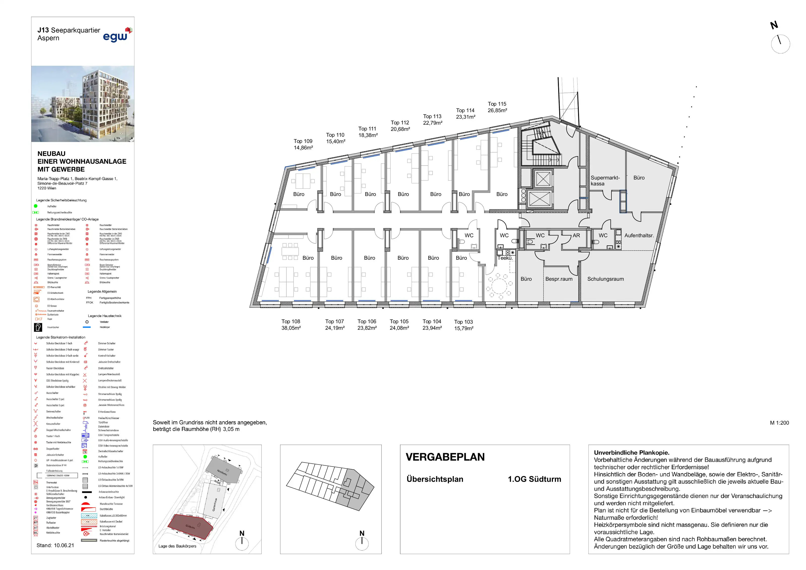
Grundriss Stockwerk  All in Büros, Top 15, 52m²
© @Projektwebsite mischa.wien
Grundriss Stockwerk  All in Büros, Top 15, 52m²
© @Projektwebsite mischa.wien
Grundriss Geschäftslokal All in Büros, Top 15, 52m²
© @Projektwebsite mischa.wien

Mietfläche

51,29 m²

Geschoß

OG

Kontakt

 

Josef Tesar

T: +43 1545 15 67 122
M: Josef.tesar@egw.at 
W: www.egw.at 

Objektname

MISCHA

Quartier

Baufeld

J13

Adresse

Maria-Trapp-Platz 1

Kartenposition

Downloads

Mehr dazu